科目:初中数学 来源:2016-2017学年山东省日照市莒县2016-2017学年七年级下学期期中考试数学试卷(解析版) 题型:单选题
点P(﹣1,5)所在的象限是( ).
A. 第一象限 B. 第二象限 C. 第三象限 D. 第四象限
查看答案和解析>>
科目:初中数学 来源:2017届江苏省无锡市滨湖区九年级下学期第一次模拟考试数学试卷(解析版) 题型:填空题
如图,在正方形纸片ABCD中,EF∥AB,M,N是线段EF的两个动点,且MN=
EF,若把该正方形纸片卷成一个圆柱,使点A与点B重合,若底面圆的直径为6cm,则正方形纸片上M,N两点间的距离是____________cm.
![]()
查看答案和解析>>
科目:初中数学 来源:2016-2017学年江苏省兴化市顾庄学区三校七年级下学期期中考试数学试卷(解析版) 题型:解答题
(Ⅰ)(1)问题引入
如图①,在△ABC中,点O是∠ABC和∠ACB平分线的交点,若∠A=α,则∠BOC= (用α表示);
(2)拓展研究
如图②,∠CBO=
∠ABC,∠BCO=
∠ACB,∠A=α,试求∠BOC的度数 (用α表示).(3)归纳猜想
若BO、CO分别是△ABC的∠ABC、∠ACB的n等分线,它们交于点O,∠CBO=
∠ABC,∠BCO=
∠ACB,∠A=α,则∠BOC= (用α表示).
(Ⅱ)类比探索
(1)特例思考
如图③,∠CBO=
∠DBC,∠BCO=
∠ECB,∠A=α,求∠BOC的度数(用α表示).
(2)一般猜想
若BO、CO分别是△ABC的外角∠DBC、∠ECB的n等分线,它们交于点O,∠CBO=
∠DBC,∠BCO=
∠ECB,∠A=α,请猜想∠BOC= (用α表示).
![]()
查看答案和解析>>
科目:初中数学 来源:2016-2017学年江苏省兴化市顾庄学区三校七年级下学期期中考试数学试卷(解析版) 题型:解答题
(1)如图,已知△ABC,试画出AB边上的中线和AC边上的高;
(2)有没有这样的多边形,它的内角和是它的外角和的3倍?如果有,请求出它的边数.
![]()
查看答案和解析>>
科目:初中数学 来源:2016-2017学年江苏省兴化市顾庄学区三校七年级下学期期中考试数学试卷(解析版) 题型:填空题
等腰三角形的三边长为3,a,7,则它的周长是______.
查看答案和解析>>
科目:初中数学 来源:2016-2017学年江苏省兴化市顾庄学区三校七年级下学期期中考试数学试卷(解析版) 题型:单选题
计算(-2xy2)3,结果正确的是( )
A. -8xy6 B. -6x3y2 C. -6xy6 D. -8x3y6
查看答案和解析>>
科目:初中数学 来源:2017届江苏省扬州市九年级下学期期中考试数学试卷(解析版) 题型:填空题
为了了解某地区45000名九年级学生的睡眠情况,运用所学统计知识解决上述问题所要经历的几个主要步骤:①抽样调查;②设计调查问卷;③用样本估计总体;④整理数据;⑤分析数据,按操作的先后进行排序为____.(只写序号)
查看答案和解析>>
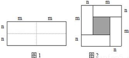
科目:初中数学 来源:2016-2017学年江苏省七年级下学期期中考试数学试卷(解析版) 题型:解答题
如图1,是一个长为2m、宽为2n的长方形,沿图中虚线剪成四个完全一样的小长方形,然后按图2的形状拼成一个正方形.
![]()
(1)图2中阴影部分的面积为 ;
(2)用两种不同的方法计算图2中阴影部分的面积,可以得到的等式是 (只填序号);
①(m+n)2=m2+2mn+n2 ②(m﹣n)2=m2﹣2mn+n2 ③(m﹣n)2=(m+n)2﹣4mn
(3)若x﹣y=﹣4,xy=
,则x+y= .
查看答案和解析>>
湖北省互联网违法和不良信息举报平台 | 网上有害信息举报专区 | 电信诈骗举报专区 | 涉历史虚无主义有害信息举报专区 | 涉企侵权举报专区
违法和不良信息举报电话:027-86699610 举报邮箱:58377363@163.com