精英家教网 > 初中数学 > 题目详情
3.用一张边长为12cm的正方形纸片经过剪、拼、粘、折等工序,做成一个无盖的长方体盒子,要求没有余料,粘贴处不重合,你有哪些设计方案(画图且说明),并求出你所设计的长方体盒子的体积.(设计三种方案)

分析 根据长方体有六个面,且是一个一个无盖的长方体盒子进行作图后,再根据长方体的体积计算即可.

解答 解:方案1,如图1:

体积为:3×3×11.25=101.25;
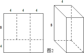
方案2,如图2:
体积为:4×4×8=128;
方案3,如图3:
体积为:6×6×4.5=162.

点评 此题考查作图问题,关键是根据长方体的立体展开图和长方体的体积公式计算.

练习册系列答案
相关习题

科目:初中数学 来源: 题型:解答题

13.拓广探索:
图1是一个长为2m,宽为2n的长方形,沿图中虚张用剪刀均成四块小长方形,然后按图2的形状拼成一个正方形.
(1)观察图1、图2,写出(m+n)2、(m-n)2、mn之间的等量关系(m+n)2=(m-n)2+4mn;
(2)上述规律若a+b=-4,ab=-21,求a-b的值.

查看答案和解析>>

科目:初中数学 来源: 题型:解答题

14.如图,这是一个供滑板爱好者使用的U型池,该U型池可以看作是一个长方体去掉一个“半圆柱”而成,中间可供滑行部分的截面是半径为4m的半圆,其边缘AB=CD=18m,点E在CD上,CE=2cm,一滑行爱好者从A点到E点,再从E点滑行到B点,则他滑行的最短距离是多少?(边缘部分的厚度可以忽略不计,π取3)

查看答案和解析>>

科目:初中数学 来源: 题型:填空题

11.A(3,0)是以O为原点的平面直角坐标系中的一点,把线段OA绕点O逆时针旋转90°,得线段OB,则点B的坐标为(0,3).

查看答案和解析>>

科目:初中数学 来源: 题型:解答题

18.某工厂计划生产A、B两种产品共10件,其生产成本和利润如下表.
A种产品B种产品
成本(万元/件)25
利润(万元/件)13
(1)若工厂生产成本不多于35万元,且获利多于15万元,问工厂有哪几种生产方案?
(2)在(1)的条件下,哪种生产方案获利最大?并求出最大利润.

查看答案和解析>>

科目:初中数学 来源: 题型:填空题

8.如图,所有正三角形的一边平行于x轴,一顶点在y轴上,从内到外,它们的边长依次为2,4,6,8,…,顶点依次用A1、A2、A3、A4、…表示,其中A1A2与x轴、底边A1A2与A4A5、A4A5与A7A8、…均相距一个单位,则A2014的坐标是(-672,-672).

查看答案和解析>>

科目:初中数学 来源: 题型:解答题

15.探索规律:
(1)观察下列各式:62-42=4×5;112-92=4×10;172-152=4×16…你发现了什么规律?试用你发现的规律填空:512-492=4×50;752-732=4×74.
(2)请你用含一个字母的等式将上面各式呈现的规律表示出来.

查看答案和解析>>

科目:初中数学 来源: 题型:选择题

12.如图,在矩形ABCD中,AB=2,BC=1,动点P从点B出发,沿路线B→C→D作匀速运动,那么△ABP的面积y与点P运动的路程x之间的函数图象大致是(  )
A.B.C.D.

查看答案和解析>>

科目:初中数学 来源: 题型:解答题

13.如图,若△ABC内任意一点P(x0,y0)经平移后对应点为P1(x0-2,y0-3),现将△ABC作同样的平移得到△A1B1C1
(1)求A1,B1,C1的坐标;
(2)在如图的平面直角坐标系中,画出△A1B1C1的图形.

查看答案和解析>>

同步练习册答案